Nous contacter
Mon espace
×
Solutions
Solutions
Particulier
Expertiser mon bien
Investir dans l'immobilier
Investir en SCPI
Acheter ma résidence principale
Vendre mon bien immobilier
Toutes nos solutions aux particuliers
Professionnel
Acheter ou investir
Définir ma stratégie immobilière
Expertiser mon bien professionnel
Louer des bureaux
Maîtriser mes projets immobilier
Toutes nos solutions aux professionnels
Annonces
Annonces
Investir / acheter dans l’immobilier résidentiel
Investir en immobilier
Déficit Foncier
LMNP
Loi Malraux
Monuments Historiques
Nue Propriété
Habiter
Accession sociale
Appartement / maison
Lancez une recherche residentielle
Trouver une implantation pour votre entreprise
Location Bureaux
Location bureaux Paris 2
Location bureaux Paris 8
Location bureaux Paris 9
Location bureaux Paris 16
Location bureaux Paris 17
Location bureaux Paris 18
Location bureaux Paris 19
Location bureaux Paris 5
Location bureaux Paris 13
Location bureaux Paris 14
Location bureaux Hauts-de-Seine
Location bureaux Yvelines
Location bureaux Essonne
Location bureaux Val-de-Marne
Lancez une recherche pour entreprise
Actualités
Actualités
Nos actualités
Nos publications
Nos vidéos
Nous connaître
Nous rejoindre
Nous contacter
Location de bureaux Paris 16
Accueil
Bureaux
Location
Ile-de-france
Paris
Paris-16
Localisation
Localisation
Abbesses (métro)
Adrienne Bolland (tram)
Ain
Aisne
Alésia (métro)
Alexandra David-Neel (tram)
Alexandre-Dumas (métro)
Allier
Alma-Marceau (métro)
Alpes-de-Haute-Provence
Alpes-Maritimes
Anatole-France (métro)
ANTONY - 92160
Antony (rer)
Anvers (métro)
ARCUEIL - 94110
Ardèche
Ardennes
ARGENTEUIL - 95100
Argentine (métro)
Ariège
Arts-et-Métiers (métro)
ASNIERES SUR SEINE - 92600
Asnieres-Gennevilliers Les Courtilles (métro)
Assemblée Nationale (métro)
Aube
Auber (rer)
Aubervilliers Pantin (4 Chemins) (métro)
Aude
AUFFARGIS - 78610
AUGUSTE DELAUNE (tram)
Avenue de France (tram)
Avenue Emile-Zola (métro)
Avenue Foch (rer)
Avenue Henri-Martin (rer)
Aveyron
Avron (métro)
BAGNEUX - 92220
Bagneux (rer)
Balard (tram)
Barbès-Rochechouart (métro)
Baron Leroy (tram)
Bas-Rhin
Basilique de Saint-Denis (métro)
BASILIQUE DE SAINT-DENIS (tram)
Bastille (métro)
Bel-Air (métro)
Belleville (métro)
BELVEDERE (tram)
Bérault (métro)
Bercy (métro)
Bibliotheque-Francois Mitterrand (rer)
Billancourt (métro)
Bir-Hakeim (Grenelle) (métro)
Blanche (métro)
BOBIGNY - 93000
BOBIGNY - PABLO PICASSO (tram)
Bobigny-Pablo-Picasso (métro)
Bobigny-Pantin (Raymond Queneau) (métro)
BOIS-COLOMBES - 92270
Boissière (métro)
Bolivar (métro)
Bonne Nouvelle (métro)
Botzaris (métro)
Bouches-du-Rhône
Boucicaut (métro)
Boulainvilliers (rer)
Boulevard Victor (rer)
Boulogne Pont de Saint-Cloud (métro)
BOULOGNE-BILLANCOURT - 92100
Boulogne-Jean-Jaurès (métro)
Bourg-la-Reine (rer)
Provence-Alpes-Côte d'Azur
Bourse (métro)
Brancion (tram)
Bréguet-Sabin (métro)
BRIMBORION (tram)
Brochant (métro)
Butte du Chapeau Rouge (tram)
Buttes-Chaumont (métro)
Buzenval (métro)
CACHAN - 94230
Cadet (métro)
Calvados
Cambronne (métro)
Campo-Formio (métro)
Canal Saint Denis (tram)
Cantal
Cardinal-Lemoine (métro)
Carquefou - 44470
Carrefour-Pleyel (métro)
Censier-Daubenton (métro)
Champ de Mars-Tour Eiffel (rer)
Champs-Elysées-Clémenceau (métro)
Chardon-Lagache (métro)
Charente
Charente-Maritime
CHARENTON LE PONT - 94220
Charenton-Ecoles (métro)
Charles de Gaulle-Etoile (rer)
Charles Michels (métro)
Charonne (métro)
Château d'Eau (métro)
Château de Vincennes (métro)
Château Landon (métro)
Château Rouge (métro)
Châtelet (métro)
Chatelet-Les Halles (rer)
CHATENAY MALABRY - 92290
Châtillon Montrouge (métro)
Chaussée d'Antin (La Fayette) (métro)
Chaville-Vélizy (rer)
Chemin Vert (métro)
Cher
Chevaleret (métro)
CIMETIERE DE SAINT-DENIS (tram)
Cité (métro)
Cité Universitaire (tram)
CLAMART - 92140
CLICHY - 92110
Cluny-La Sorbonne (métro)
Colette Besson (tram)
COLOMBES - 92700
Colonel Fabien (métro)
Commerce (métro)
Concorde (métro)
Convention (métro)
CORBEIL-ESSONNES - 91100
Corentin-Cariou (métro)
Corentin-Celton (métro)
Corrèze
Corse-du-Sud
Corvisart (métro)
COSMONAUTES (tram)
Côte-d'Or
Côtes-d'Armor
Cour Saint-Emilion (métro)
COURBEVOIE - 92400
Courcelles (métro)
Couronnes (métro)
Créteil-L'Echat (Hôpital Henri Mondor) (métro)
Créteil-Préfecture (Hôtel de Ville) (métro)
Créteil-Université (métro)
Creuse
Crimée (métro)
Croix-de-Chavaux (Jacques Duclos) (métro)
DANTON (tram)
Danube (métro)
Daumesnil (Félix Eboué) (métro)
DECINES CHARPIEU - 69150
Delphine Seyrig (tram)
Denfert-Rochereau (rer)
Desnouette (tram)
Deux-Sèvres
Didot (tram)
Dordogne
Doubs
DRANCY-AVENIR (tram)
Drôme
Dugommier (métro)
Dupleix (métro)
Duroc (métro)
Ecole Militaire (métro)
Ecole Vétérinaire de Maisons-Alfort (métro)
Edgar-Quinet (métro)
Eglise d'Auteuil (métro)
Eglise de Pantin (métro)
Ella Fitzgerald - Grands Moulins de Pantin (tram)
ESCADRILLE NORMANDIE-NIEMEN (tram)
Esplanade de la Défense (métro)
Essonne
Etienne Marcel (métro)
Eure
Eure-et-Loir
Europe (métro)
EVRY - 91000
Exelmans (métro)
Faidherbe-Chaligny (métro)
Falguière (métro)
Félix Faure (métro)
Filles du Calvaire (métro)
Finistère
Fontaine-Michalon (rer)
Fontenay-aux-Roses (rer)
FONTENAY-SOUS-BOIS - 94120
Fort d'Aubervilliers (métro)
Franklin-Roosevelt (métro)
Fréjus - 83600
Gabriel-Péri (métro)
Gaité (métro)
Gallieni (Parc de Bagnolet) (métro)
Gambetta (métro)
Gard
GARE D'ALLEE DE LA TOUR RENDEZ VOUS (tram)
GARE D'AULNAY SOUS BOIS (tram)
Gare d'Austerlitz (rer)
Gare d'Austerlitz Grandes Lignes (rer)
GARE DE BONDY (tram)
GARE DE FREINVILLE SEVRAN (tram)
GARE DE GARGAN (tram)
GARE DE L ABBAYE (tram)
Gare de l'Est (rer)
Gare de l'Est (Verdun) (métro)
Gare de Lyon (Banlieue) (rer)
Gare de Lyon (rer)
GARE DES COQUETIERS (tram)
GARE DES PAVILLONS SOUS BOIS (tram)
Gare du Nord (rer)
Garibaldi (métro)
GASTON ROULAUD (tram)
GENNEVILLIERS - 92230
Gennevilliers (rer)
George V (métro)
Georges Brassens (tram)
Gers
Gironde
Glacière (métro)
Goncourt (Hôpital Saint-Louis) (métro)
Grands Boulevards (métro)
Guy-Môquet (métro)
Haussmann-Saint-Lazare (rer)
Haut-Rhin
Haute-Corse
Haute-Garonne
Haute-Loire
Haute-Marne
Haute-Saône
Haute-Savoie
Haute-Vienne
Hautes-Alpes
Hautes-Pyrénées
Hauts-de-Seine
Havre-Caumartin (métro)
Henri Farman-Porte de Seine (tram)
Hérault
Hoche (métro)
HOPITAL AVICENNE (tram)
HOPITAL DELAFONTAINE (tram)
Hôpital Robert Debré (tram)
Hôtel de Ville (métro)
HOTEL DE VILLE DE BOBIGNY (tram)
HOTEL DE VILLE DE LA COURNEUVE (tram)
Iéna (métro)
Ile-de-France
Ille-et-Vilaine
Indre
Indre-et-Loire
Invalides (rer)
Isère
Issy (rer)
ISSY-LES-MOULINEAUX - 92130
Issy-Val de Seine (rer)
ISSY-VAL DE SEINE (tram)
IVRY SUR SEINE - 94200
JACQUES HENRI LARTIGUE (tram)
Jacques-Bonsergent (métro)
Jasmin (métro)
Jaurès (métro)
Javel (rer)
Javel-André-Citroen (métro)
Jean Moulin (tram)
JEAN ROSTAND (tram)
Jourdain (métro)
Jules Joffrin (métro)
Jura
Jussieu (métro)
Kennedy Radio-France (rer)
Kléber (métro)
La Chapelle (métro)
LA COURNEUVE - 8 MAI 1945 (tram)
LA COURNEUVE - SIX ROUTES (tram)
La Courneuve-8-Mai-1945 (métro)
La Croix-de-Berny (rer)
La Défense (Grande Arche) (rer)
LA FERME (tram)
La Fourche (métro)
LA GARENNE-COLOMBES - 92250
La Motte-Picquet-Grenelle (métro)
La Muette (métro)
LA PLAINE-SAINT-DENIS - 93210
LA REMISE A JORELLE (tram)
La Tour-Maubourg (métro)
Lamarck-Caulaincourt (métro)
Landes
LAON - 02000
Laumière (métro)
Le Kremlin-Bicêtre (métro)
Le Lavandou - 83980
Le Peletier (métro)
LE PLESSIS ROBINSON - 92350
LE PRE-SAINT-GERVAIS - 93310
Ledru-Rollin (métro)
Les Agnettes (métro)
Les Baconnets (rer)
LES COTEAUX (tram)
Les Gobelins (métro)
Les Grésillons (rer)
Les Halles (métro)
LES MILONS (tram)
LES MOULINEAUX (tram)
Les Sablons (Jardin d'acclimatation) (métro)
LEVALLOIS-PERRET - 92300
LIBERATION (tram)
Liberté (métro)
Liège (métro)
LIMOGES - 87000
Loir-et-Cher
Loire
Loire-Atlantique
Loiret
Lot
Lot-et-Garonne
Louis Blanc (métro)
Louise Michel (métro)
Lourmel (métro)
Louvre-Rivoli (métro)
Lozère
Luxembourg (rer)
LYCEE HENRY SELLIER (tram)
Mabillon (métro)
Madeleine (métro)
Magenta (rer)
Maine-et-Loire
Mairie d'Issy (métro)
Mairie d'Ivry (métro)
Mairie de Clichy (métro)
Mairie de Montreuil (métro)
Mairie de Saint-Ouen (métro)
Mairie des Lilas (métro)
Maison Blanche (métro)
MAISONS-ALFORT - 94700
Maisons-Alfort-Les Juilliottes (métro)
Maisons-Alfort-Stade (métro)
MALAKOFF - 92240
Malakoff-Plateau de Vanves (métro)
Malakoff-Rue Etienne Dolet (métro)
Malesherbes (métro)
Manche
Maraichers (métro)
Marcadet-Poissonniers (métro)
Marcel Sembat (métro)
MARCHE DE SAINT-DENIS (tram)
MAREUIL LES MEAUX - 77100
Marie de Miribel (tram)
Marne
Marx-Dormoy (métro)
Maryse Bastie (tram)
Maubert-Mutualité (métro)
MAURICE LACHATRE (tram)
Mayenne
Ménilmontant (métro)
MEUDON SUR SEINE (tram)
Meudon-Val-Fleury (rer)
Meurthe-et-Moselle
Meuse
Michel Bizot (métro)
Michel-Ange-Auteuil (métro)
Michel-Ange-Molitor (métro)
Mirabeau (métro)
Miromesnil (métro)
Monceau (métro)
Montempoivre (tram)
Montgallet (métro)
Montparnasse-Bienvenue (métro)
MONTREUIL - 93100
MONTROUGE - 92120
Montsouris (tram)
Morbihan
Moselle
Mouton-Duvernet (métro)
Musée d'Orsay (rer)
MUSEE DE SEVRES (tram)
NANTERRE - 92000
Nanterre-Préfecture (rer)
Nanterre-Université (rer)
Nanterre-Ville (rer)
Nation (rer)
Nationale (métro)
NEUILLY-SUR-SEINE - 92200
Nièvre
NOISY-LE-GRAND - 93160
Nord
Notre-Dame de Lorette (métro)
Notre-Dame des Champs (métro)
Oberkampf (métro)
Odéon (métro)
Oise
Olympiades (métro)
Opéra (métro)
ORLY - 94310
Orly-Ouest (métro)
Orly-Sud (métro)
Orne
Ourcq (métro)
Palais-Royal (Musée du Louvre) (métro)
PALAISEAU - 91120
PARC DE SAINT CLOUD (tram)
Parc de Sceaux (rer)
Paris
Paris - 75001
Paris - 75002
Paris - 75003
Paris - 75004
Paris - 75005
Paris - 75006
Paris - 75007
Paris - 75008
Paris - 75009
Paris - 75010
Paris - 75011
Paris - 75012
Paris - 75013
Paris - 75014
Paris - 75015
Paris - 75016
Paris - 75017
Paris - 75018
Paris - 75019
Paris - 75020
Parmentier (métro)
Pas-de-Calais
Passy (métro)
Pasteur (métro)
PAU - 64000
Pelleport (métro)
Père-Lachaise (métro)
Péreire (rer)
Pernéty (métro)
PETIT NOISY (tram)
Philippe Auguste (métro)
Picpus (métro)
Pierre et Marie Curie (métro)
Pigalle (métro)
Place d'Italie (métro)
Place de Clichy (métro)
Place des Fêtes (métro)
Place Monge (Jardin des Plantes) (métro)
Plaisance (métro)
Pointe du Lac (métro)
Poissonnière (métro)
PONT DE BONDY (tram)
Pont de l'alma (rer)
Pont de Levallois-Bécon (métro)
Pont de Neuilly (métro)
Pont de Sèvres (métro)
Pont du Garigliano (Hôpital G.Pompidou) (tram)
Pont Marie (Cité des Arts) (métro)
Pont Neuf (métro)
Port Royal (rer)
Porte d'Aubervilliers (tram)
Porte d'Auteuil (métro)
Porte d'Issy-Elianne Jeannin-Garreau (tram)
Porte d'Italie (tram)
Porte d'Ivry (tram)
Porte d'Orléans (Général Leclerc) (métro)
Porte d'Orléans (tram)
Porte Dauphine (Maréchal de Lattre de Tassigny) (métro)
Porte de Bagnolet (tram)
Porte de Champerret (métro)
Porte de Charenton (tram)
Porte de Choisy (tram)
Porte de Clichy (rer)
Porte de Clignancourt (métro)
Porte de la Chapelle (métro)
Porte de la Chappelle (tram)
Porte de la Villette - Cité des Sciences et de l'Industrie (tram)
Porte de la Villette (métro)
Porte de Montreuil (tram)
Porte de Pantin - Parc de la Villette (tram)
Porte de Pantin (métro)
Porte de Saint-Cloud (métro)
Porte de Saint-Ouen (métro)
Porte de Vanves (tram)
Porte de Versailles (métro)
Porte de Versailles (Parc des Expositions) (tram)
Porte de Versailles-Parc des Expositions (tram)
Porte de Vincennes (tram)
Porte des Lilas (tram)
Porte Dorée (tram)
Porte Maillot (rer)
Poterne des Peupliers (tram)
Pré-Saint-Gervais (métro)
PUTEAUX - 92800
PUTEAUX (tram)
Puy-de-Dôme
Pyramides (métro)
Pyrenees (métro)
Pyrénées-Atlantiques
Pyrénées-Orientales
Quai de la Gare (métro)
Quai de la Rapée (métro)
Quatre Septembre (métro)
Rambuteau (métro)
Ranelagh (métro)
Raspail (métro)
Réaumur-Sébastopol (métro)
Reims - 51100
Rennes (métro)
République (métro)
Reuilly-Diderot (métro)
Rhône
Richard-Lenoir (métro)
Richelieu-Drouot (métro)
Riquet (métro)
Robespierre (métro)
Robinson (rer)
Rome (métro)
Rosa Parks (tram)
ROUGEMONT CHANTELOUP (tram)
Rue de la Pompe (métro)
Rue des Boulets (métro)
Rue du Bac (métro)
Rue Saint-Maur (métro)
RUEIL MALMAISON - 92500
Rueil-Malmaison (rer)
SAINT MICHEL SUR ORGE - 91240
Saint-Ambroise (métro)
Saint-Augustin (métro)
SAINT-CLOUD - 92210
SAINT-DENIS - 93200
Saint-Denis-Porte de Paris (métro)
Saint-Denis-Universite (métro)
Saint-Fargeau (métro)
Saint-Francois-Xavier (métro)
Saint-Georges (métro)
Saint-Germain des Prés (métro)
Saint-Jacques (métro)
Saint-Lazare (métro)
SAINT-MANDE - 94160
Saint-Mandé (métro)
Saint-Marcel (métro)
Saint-Michel (métro)
Saint-Michel Notre-Dame (rer)
Saint-Paul (Le Marais) (métro)
Saint-Philippe du Roule (métro)
Saint-Placide (métro)
Saint-Sébastien-Froissart (métro)
Saint-Sulpice (métro)
SAINTE SAVINE - 10300
Saône-et-Loire
Sarthe
Savoie
Sceaux (rer)
Ségur (métro)
Seine-et-Marne
Seine-Maritime
Seine-Saint-Denis
Sentier (métro)
Séverine (tram)
SEVRES - 92310
Sèvres-Babylone (métro)
Sèvres-Lecourbe (métro)
Simplon (métro)
Six fours les plages - 83140
Solférino (métro)
Somme
Stade Charléty (Porte de Gentilly) (tram)
STADE GEO ANDRE (tram)
Stalingrad (métro)
Strasbourg-Saint-Denis (métro)
Sully-Morland (métro)
SURESNES - 92150
SURESNES-LONGCHAMP (tram)
Suzanne Lenglen (tram)
TARBES - 65000
Tarn
Tarn-et-Garonne
Telegraphe (métro)
Temple (métro)
Ternes (métro)
Territoire de Belfort
THEATRE GERARD PHILIPE (tram)
THIAIS - 94320
Tolbiac (métro)
Toulon - 83000
Trinité-d'Estienne d'Orves (métro)
Trocadéro (métro)
Tuileries (métro)
Val-d'Oise
Val-de-Marne
Vaneau (métro)
Var
Varenne (métro)
Vaucluse
Vaugirard (Adolphe Chérioux) (métro)
Vavin (métro)
VELIZY VILLACOUBLA - 78140
Vendée
Victor Hugo (métro)
Vienne
VILLEJUIF - 94800
Villejuif-Léo Lagrange (métro)
Villejuif-Louis Aragon (métro)
Villejuif-Paul Vaillant Couturier (Hôpital Paul Brousse) (métro)
VILLENEUVE LA GARENNE - 92390
Villiers (métro)
VINCENNES - 94300
Volontaires (métro)
Voltaire (Léon Blum) (métro)
Vosges
Wagram (métro)
WISSOUS - 91320
Yonne
Yvelines
Actualiser
Type
Bureaux
Locaux commerciaux
Actualiser
Nature
Location
Vente
Actualiser
Surface
Surface min.
Surface max.
Actualiser
Autres critères
Référence
Prestations
Climatisation
Cuisine
ERP
Haussmannien
Immeuble indépendant
Open Space
Parking
PMR / Accès mobilité réduite
Prestations de service
Restaurant ou RIE
Terrasse / Balcon
Actualiser
Résultats :
1 offres
Trier par
Surface croissante
Surface décroissante
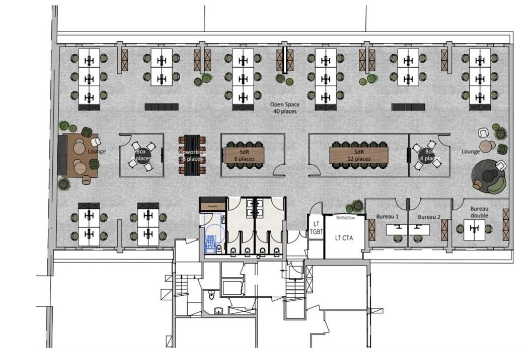
48 Avenue Victor Hugo - Paris 16
Proche de l' Etoile, une surface de bureaux atypique et très lumineuse.
242 m²
650 €/m²/an HT/HC
Location Locaux Commerciaux Paris
Location Locaux Commerciaux Paris-13
Location Locaux Commerciaux Paris-19
Location Locaux Commerciaux Paris-2
Location Locaux Commerciaux Paris-3
Location Locaux Commerciaux Paris-9
Vente Locaux Commerciaux Paris
Vente Locaux Commerciaux Paris-13
Vente Locaux Commerciaux Paris-16
Vente Locaux Commerciaux Paris-17
Vente Locaux Commerciaux Paris-5