Vente de locaux commerciaux Paris 13 13
Résultats : 1 offres
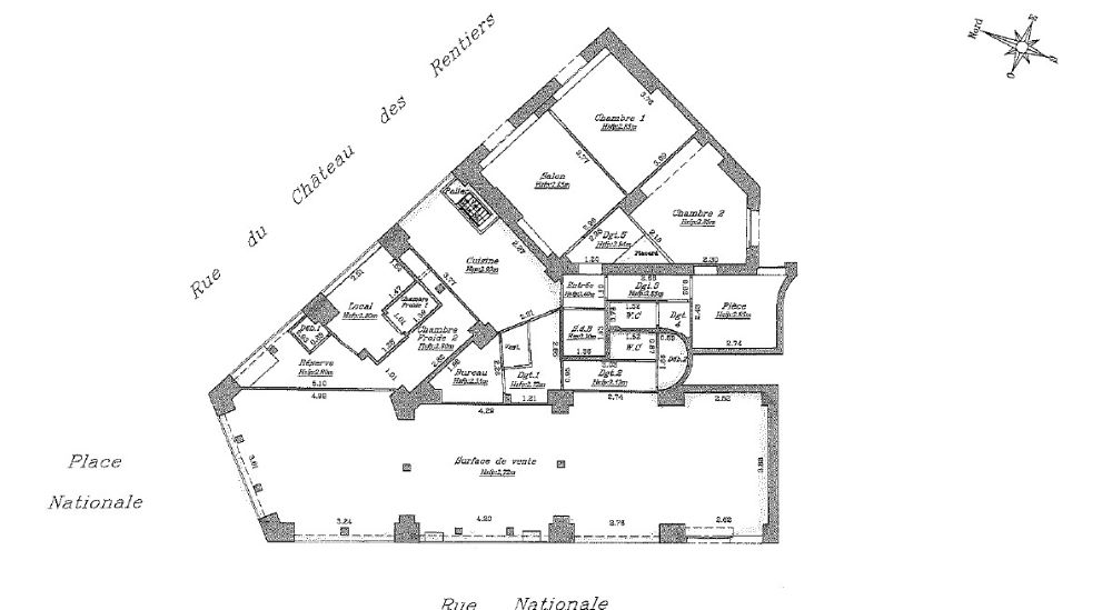
108 Rue Nationale - Paris 13 13Vente d'un local commercial proche de la place d'Italie
175 m²
850 000 € HT/HD